A small Berkshires cabin offers the best seat in the house

CASCADE CABIN

Type
ADU, Guest cabin

Size
782 sq ft

Location
West Stockbridge, MA

Builder
Chris May Builders

Photographer
Winona Barton-Ballentine

Our clients wanted a place near Tanglewood that felt close to the land and close to music. We drew the plan from a simple premise: start with the living room, put it where the view feels inevitable, then everything else steps up from there. The cabin is compact yet voluminous. Light, storage, and circulation do the work. We paired a high-performance envelope with all-electric systems and rooftop solar. We designed the cabin to approach net-zero annual energy use, subject to operations and final commissioning.

CONTEXT

Our clients found eight acres of meadow and woodland in the Berkshires, with an eastern view toward Yokun Ridge. They wanted a small building that could host a friend or two, sit lightly on the site, and hold its own across four seasons. They also wanted a cabin that felt quiet. The setting already carries enough drama. Wind moves through the trees. Sun arrives early. Wildlife crosses the clearing. The architecture frames that experience, heightening it.

VISION

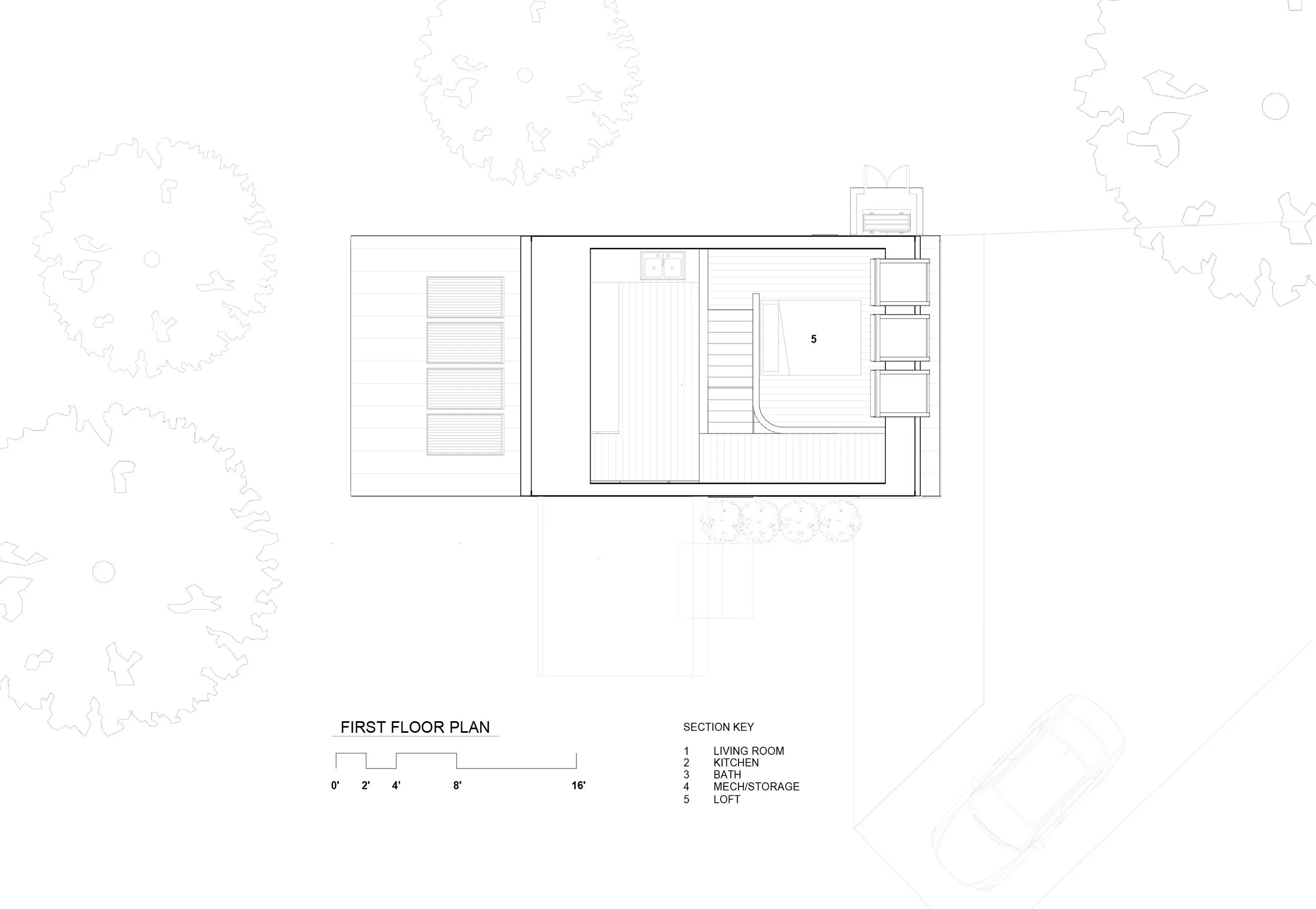
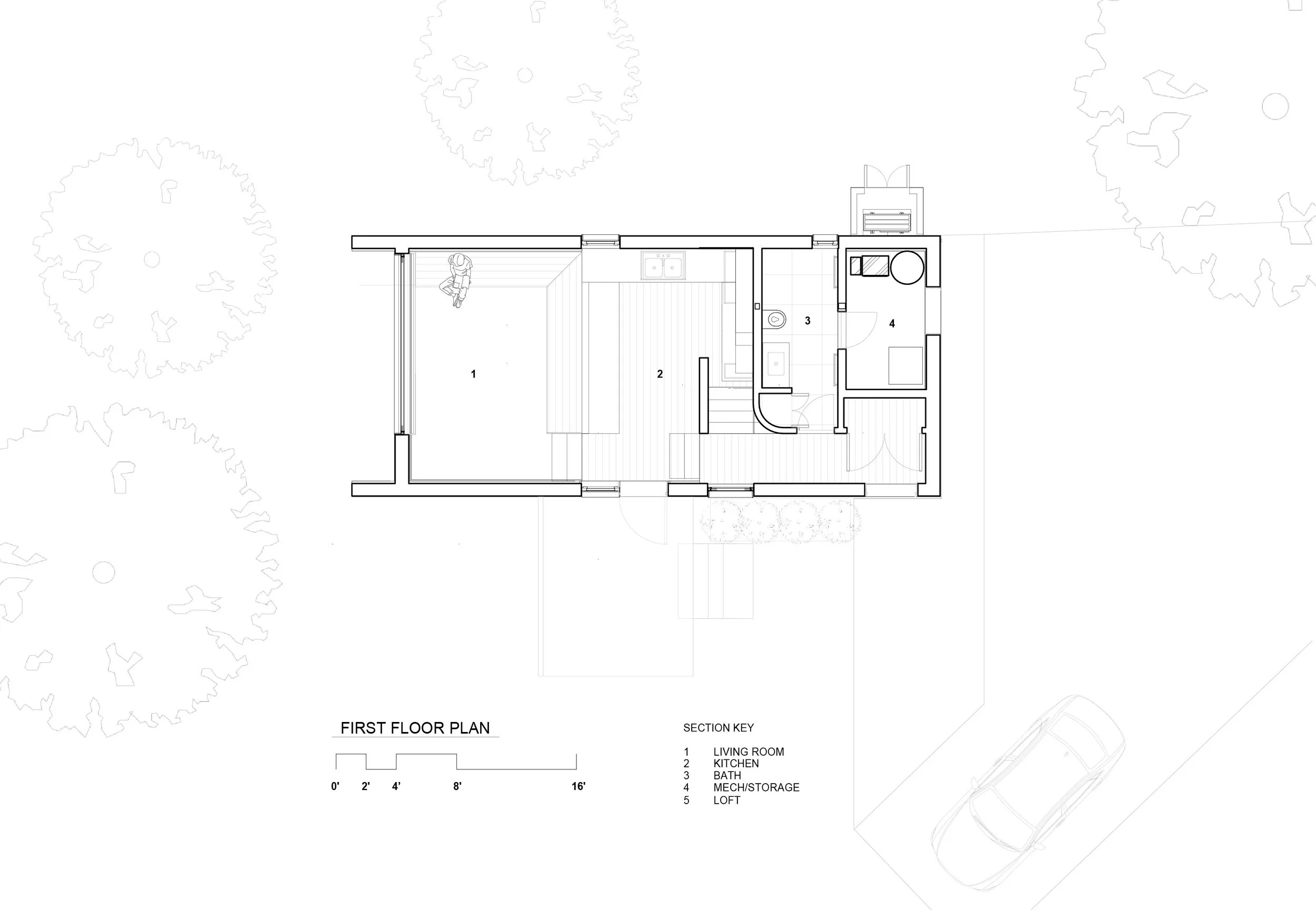
We organized the cabin as a short cascade down the slope. You enter at the high point, then step down into a sunken living room that meets the ground. A built-in couch wraps that space and faces a full wall of glass. Two steps up, the kitchen and dining peninsula do double duty. The plan stays honest about what it asks of a small footprint. Every surface earns its place.

A curved wood wall ties the lower level to the loft above in one continuous gesture. The loft tucks under the roofline and opens to three large skylights that bring the sky into the room. Outside, we clad the cabin in charred Japanese cedar using the yakisugi method. The dark tone gives the building a steady presence as the seasons change.

OUTCOME

The cabin gives the clients a front-row view of the Berkshires and a daily rhythm that feels grounded. Morning coffee faces the sunrise. Evenings settle into the couch, with the landscape offering dramatic views.

Built-in storage keeps the interior spare. A compact bath and mechanical room are tucked away. The loft includes essentials–nothing superfluous.

SUSTAINABILITY

We designed the cabin to reduce energy demand first, then meet remaining loads with efficient electric systems and on-site solar. Final performance depends on commissioning, weather, and how the clients operate the cabin. Premium built-ins—including super-insulated assemblies, high performance triple pane windows, an electric heat pump, a rooftop solar array, a polished concrete slab that stores warmth when winter sun hits the glass—create a quiet interior atmosphere and maintain a steady temperature with few drafts.

Featured in the March - April 2026 edition of Dwell magazine. Read the full article here!


Next
Next

Pawtucket Farm Wildlife Sanctuary